brighton road

 

extension to a protected structure & garden room, rathgar, dublin

complete 2022

 

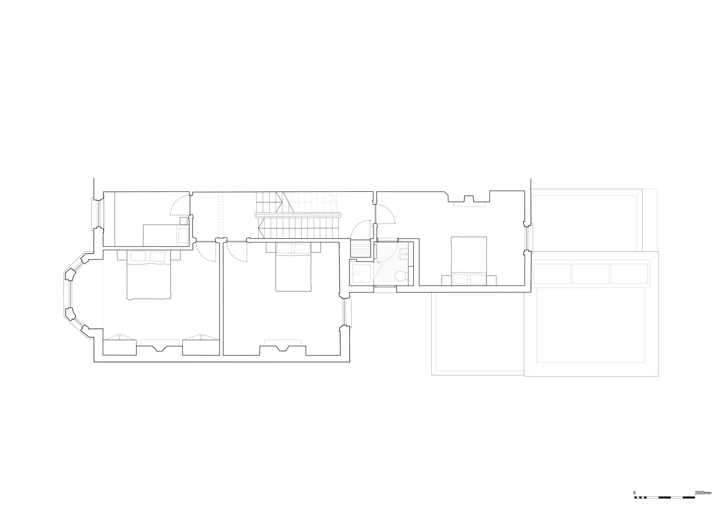
this project is a refurbishment of, and extension to, a protected historic building. while the original house is largely brought back to its original refined condition, for the extension we wanted to offer the family a different type of space - a domesticated cave, textural and atmospheric.

we began with an internally exposed concrete blockwork structure, with the coursing of the block changing where light hits it directly.

the blockwork window reveals are staggered in plan and section to give the impression of a raw archaic opening, which changes the atmosphere of the room.

Team

 
  • alice casey, cian deegan, bram d’hoedt, jessica keller

  • casey o’rourke associates

  • aa safety consultants

  • michael duffy & son contractors

  • culligan architects - damien culligan

  • acrewood

  • © aisling mccoy & TAKA architects